Привет Незарегистрированный! Добро пожаловать на Фото-Град. Размещай свои фотографии, смотри фотографии других форумчан.

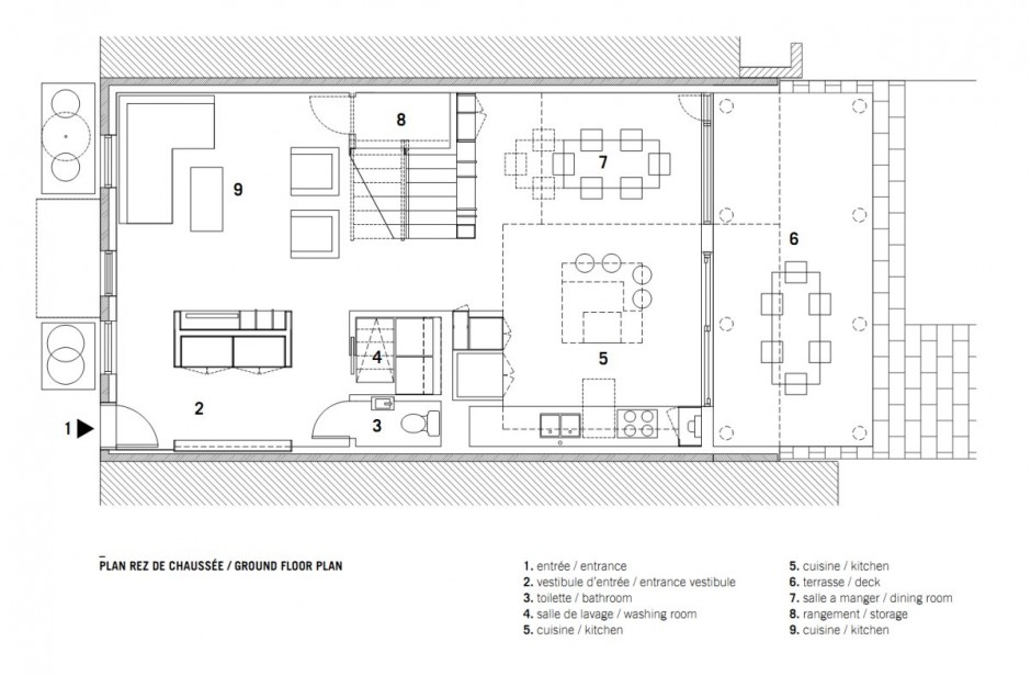
duplex-in-montreal-7

Добавил(а) Karakulya
Читали: 266  
от Karakulya
 
Диафильм 
duplex-in-montreal-12  duplex-in-montreal-7  duplex-in-montreal-13

  Описание для duplex-in-montreal-7

Описание

Недоступно


madloba.info