Привет Незарегистрированный! Добро пожаловать на Фото-Град. Размещай свои фотографии, смотри фотографии других форумчан.

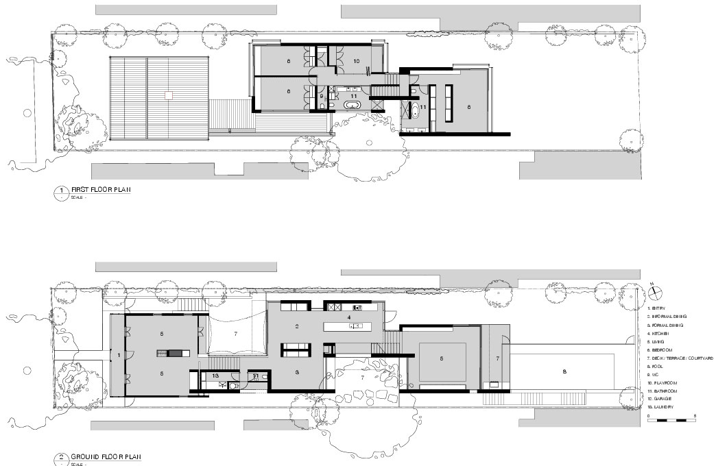
Luff Residence by Pohio Adams Architects

Добавил(а) volucky
Читали: 247 [+] Увеличить  
от volucky
 
Диафильм 
Luff Residence by Pohio Adams Architects  Luff Residence by Pohio Adams Architects  H-House by BANG by MIN

  Описание для Luff Residence by Pohio Adams Architects

Описание

Недоступно


madloba.info