Привет Незарегистрированный! Добро пожаловать на Фото-Град. Размещай свои фотографии, смотри фотографии других форумчан.

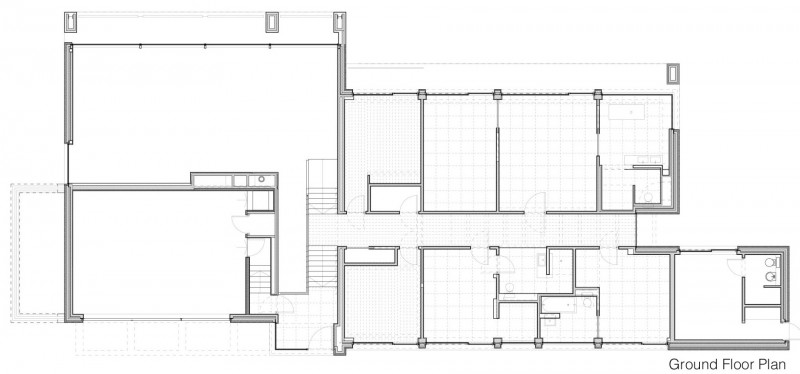
House 780 in Manchester

Добавил(а) volucky
Читали: 237  
от volucky
 
Диафильм 
St Mary’s Infant School in UK  House 780 in Manchester  House 780 in Manchester

  Описание для House 780 in Manchester

Описание

Недоступно


madloba.info